Trong thực tế, nhiều chủ đầu tư gặp tình huống quen thuộc khi thi công nhà hàng tại Đức: bản vẽ thiết kế rất chỉn chu, concept rõ ràng, nhưng khi triển khai lại không thể làm đúng như ban đầu. Nguyên nhân không nằm ở việc thiết kế thiếu thẩm mỹ, mà nằm ở việc bản vẽ không được xây dựng dựa trên điều kiện thi công thực tế tại Đức.
1. Nguyên nhân khiến thiết kế không thể triển khai tại Đức
Vật liệu trong bản vẽ không tồn tại tại Đức
Đây là lỗi rất phổ biến khi thiết kế từ Việt Nam hoặc tham khảo các mẫu có sẵn.
Nhiều loại vật liệu quen thuộc tại Việt Nam như gỗ tự nhiên giá rẻ, gạch bông, đá trang trí hoặc các chi tiết decor thủ công lại không có sẵn tại Đức hoặc rất khó tìm. Nếu có, chi phí nhập khẩu thường cao hơn nhiều so với dự toán ban đầu.

Khi bước vào thi công, đội thi công buộc phải thay thế bằng vật liệu khác. Việc thay thế này dẫn đến hai hệ quả: hoặc concept bị sai lệch, hoặc chi phí bị đội lên đáng kể.
Thiết kế không tuân theo tiêu chuẩn kỹ thuật Đức
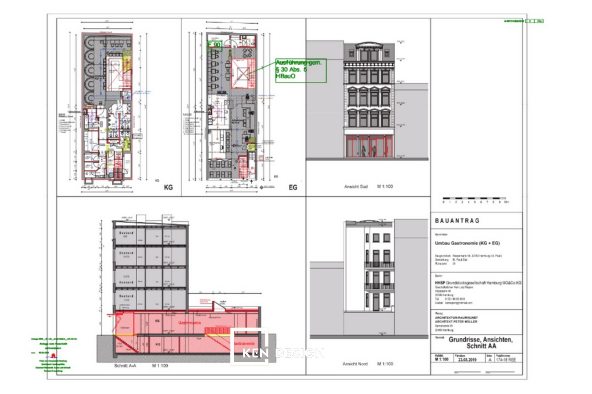
Hệ thống tiêu chuẩn xây dựng tại Đức rất chặt chẽ, đặc biệt trong lĩnh vực F&B. Các yếu tố như hệ thống phòng cháy chữa cháy, thông gió bếp, cấp thoát nước hay cách bố trí lối thoát hiểm đều có quy định rõ ràng theo từng bang.

Nếu bản vẽ không tính đến các yếu tố này ngay từ đầu, khả năng cao sẽ không được cấp phép thi công. Khi đó, chủ đầu tư buộc phải chỉnh sửa lại hồ sơ hoặc thi công lại một phần đã làm.
Thiết kế không phù hợp với vận hành thực tế
Một số layout nhìn đẹp nhưng không phù hợp với cách vận hành nhà hàng.

Ví dụ, khu bếp bố trí không hợp lý, luồng di chuyển bị chồng chéo hoặc không đủ không gian cho thiết bị. Khi đó, chủ đầu tư buộc phải điều chỉnh lại trong quá trình thi công.
Thiết kế không gắn với phương án thi công
Một trong những sai lầm lớn nhất là hoàn thành thiết kế trước, sau đó mới bắt đầu tìm phương án thi công.
Quy trình này khiến bản vẽ không gắn với điều kiện thực tế về vật liệu, kỹ thuật và chi phí. Khi triển khai, các vấn đề mới bắt đầu phát sinh.
2. Cách đảm bảo bản vẽ có thể thi công thực tế tại Đức
Thiết kế phải dựa trên điều kiện thi công thực tế
Để hạn chế sai lệch, thiết kế cần được xây dựng dựa trên điều kiện thi công ngay từ đầu. Các yếu tố cần xác định rõ:
+ Hệ thống kỹ thuật (điện, nước, thông gió)
+ Kết cấu mặt bằng
+ Khả năng thi công tại địa phương

Thiết kế chỉ hiệu quả khi phù hợp với điều kiện thực tế.
Không nên để đến khi thi công mới bắt đầu chọn vật liệu.
Ngay từ giai đoạn thiết kế, cần xác định rõ:
+ Sử dụng vật liệu có sẵn tại Đức
+ Chuẩn bị vật liệu từ Việt Nam
Triển khai đầy đủ hồ sơ kỹ thuật thi công
Một bộ hồ sơ kỹ thuật đầy đủ cần bao gồm:
+ Bản vẽ chi tiết từng hạng mục
+ Kích thước cụ thể
+ Cấu tạo vật liệu
Mục tiêu là giúp đội thi công có thể triển khai mà không cần “đoán”. Bản vẽ càng rõ ràng, khả năng sai lệch càng thấp và triển khai chính xác tại Đức.
Kết nối chặt giữa thiết kế và thi công
Chủ đầu tư cần chắc chắn thiết kế và thi công cần được kiểm soát như một quy trình thống nhất.
Người thiết kế cần hiểu rõ cách triển khai thực tế, từ vật liệu đến phương pháp thi công. Đồng thời, toàn bộ quá trình cần có một đơn vị kiểm soát xuyên suốt để đảm bảo mọi hạng mục đều đi đúng hướng.

Khi thiết kế gắn liền với thi công, các vấn đề phát sinh sẽ được hạn chế ngay từ đầu, thay vì xử lý khi công trình đã bắt đầu triển khai.
3. Giải pháp từ Kendesign: Thiết kế gắn liền với thi công thực tế
Thiết kế dựa trên vật liệu có thể triển khai
Trong các dự án thi công nhà hàng tại Đức, Kendesign không xây dựng thiết kế theo hướng ý tưởng chung. Mỗi chi tiết trong bản vẽ đều được xác định rõ vật liệu sử dụng và nguồn cung tương ứng. Điều này giúp đảm bảo rằng toàn bộ thiết kế có thể triển khai thực tế, không phải thay đổi khi thi công.

Chủ động chuẩn bị và gia công vật liệu tại Việt Nam
Đối với các hạng mục quan trọng như nội thất, quầy bar hoặc chi tiết trang trí, Kendesign triển khai phương án gia công tại Việt Nam và vận chuyển sang Đức.

Cách làm này giúp giữ đúng concept ban đầu, đồng thời kiểm soát chất lượng vật liệu và hạn chế việc phải thay thế bằng phương án khác tại địa phương.
Đây là giải pháp hiệu quả để tránh tình trạng “bản vẽ một kiểu, thi công một kiểu”.
Kiểm soát đồng bộ từ thiết kế đến thi công
Quá trình triển khai được theo dõi xuyên suốt từ thiết kế đến hoàn thiện.
Các mốc tiến độ, hình ảnh thực tế và tình trạng thi công đều được Kendesign cập nhật liên tục để kiểm soát dự án dù không trực tiếp có mặt.
Kinh nghiệm triển khai thực tế tại Đức
Việc đã thực hiện nhiều dự án tại Đức giúp Kendesign hiểu rõ các tiêu chuẩn kỹ thuật và cách tổ chức thi công tại địa phương.
Nhờ đó, thiết kế được xây dựng ngay từ đầu theo hướng phù hợp với điều kiện thực tế, giảm thiểu rủi ro và hạn chế việc chỉnh sửa trong quá trình thi công.
Với kinh nghiệm thực hiện các dự án F&B từ Việt Nam sang Đức, Kendesign định hướng thiết kế ngay từ đầu theo khả năng thi công thực tế, đồng thời chủ động phương án vật liệu và kiểm soát xuyên suốt quá trình triển khai. Điều này giúp công trình hoàn thiện bám sát bản vẽ và đảm bảo hiệu quả vận hành.
Liên hệ ngay với chúng tôi qua hotline 0987 413 998 hoặc Fanpage KenDesign để được tư vấn miễn phí và bắt đầu kế hoạch thi công nhà hàng tại Đức một cách rõ ràng và hiệu quả hơn.


